Tip 25 - 166
Izgradnja doma je mnogo više od stvaranja novog stambenog prostora – to je prilika da realizujete svoje ideje, unapredite kvalitet života i uživate u slobodi sopstvenog doma. Zahvaljujući pažljivo osmišljenom rasporedu, ovaj model montažne kuće pruža dovoljno prostora da svaki član porodice pronađe svoj kutak.
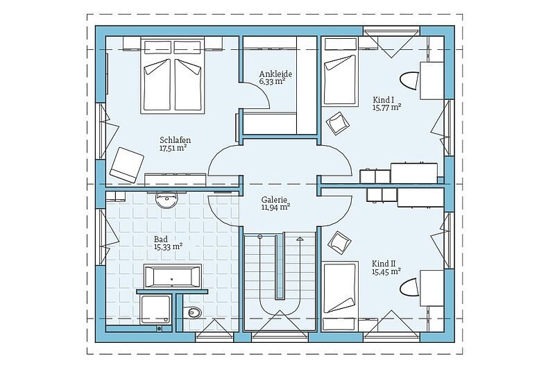
Dok se porodični život odvija u svetlom dnevnom boravku i trpezariji sa otvorenom kuhinjom, sprat nudi mirnije zone za odmor – dve dečije sobe, glavnu spavaću sobu sa garderoberom i porodično kupatilo.
Prostran ulazni deo sa garderoberom i dodatnim prostorom za odlaganje omogućava urednost i organizaciju, bez nagomilanih jakni i obuće.
Ovaj model je dostupan i u varijantama sa dodatnom stambenom jedinicom – sa zajedničkim ulazom ili sa potpuno odvojenim ulazima, u skladu sa potrebama i načinom života.
Površina
155,67 m²
broj etaža
1,5
broj soba
10
Često postavljana pitanja
Odgovori na najčešća pitanja naših klijenata.
Koliko košta izrada montažne kuće?
Cena zavisi od dimenzija, materijala i drugih zahteva. Cena po kvadratu po sistemu “ključ u ruke” je obično 700 EUR. Pozovite nas za besplatnu konsultaciju i detaljnu ponudu.
Koliko traje izgradnja montažne kuće?
Rok izgradnje zavisi od veličine i kompleksnosti projekta, ali montažne kuće se znatno brže realizuju u odnosu na klasičnu gradnju. Tačan vremenski okvir definiše se nakon dogovora i izrade projekta.
Da li je moguće prilagoditi projekat prema našim željama?
Naravno. Svaki projekat prilagođavamo potrebama klijenta, lokaciji, budžetu i funkcionalnim zahtevima kako bismo dobili optimalno rešenje.
Da li su montažne kuće kvalitetne i dugotrajne?
Da. Montažne kuće su projektovane da budu izuzetno kvalitetne, stabilne i dugotrajne. Uz pravilnu izgradnju i održavanje, njihov vek trajanja je uporediv sa klasičnim kućama.
Koji materijali se koriste u gradnji?
U izgradnji koristimo pažljivo odabrane i kvalitetne materijale, uz kombinaciju savremenih tehnologija koje obezbeđuju energetsku efikasnost, sigurnost i dugotrajnost objekta.
Gde radimo
Izrađujemo i montiramo kuće u Srbiji i inostranstvu. Inače smo iz Ivanjice.
Zatražite besplatne konsultacije i ponudu
Kontaktirajte nas za besplatne konsultacije i ponudu. Bez obaveza.