Tip 176
Ova montažna kuća od 176 m² nudi izuzetno prostran i funkcionalan raspored, raspoređen na dve pune etaže i dodatni potkrovni prostor. Zahvaljujući porodično orijentisanom planu, prilagođenom svakodnevnom životu, omogućava raznovrsne načine korišćenja prostora.
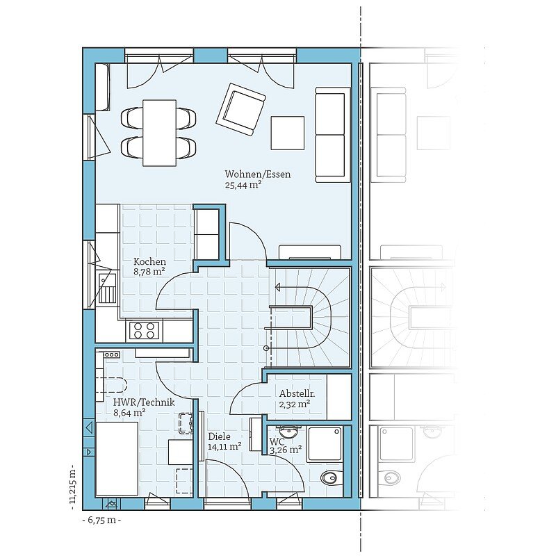
U prizemlju se nalaze dnevni boravak i zajedničke prostorije, dok su spavaće sobe smeštene na spratu. Dodatnu vrednost predstavljaju još dve prostorije u potkrovlju, koje se mogu organizovati kao treća dečija soba, radna ili gostinska soba, ili prostor za hobi aktivnosti.
Po želji, objekat se može dodatno unaprediti nadstrešnicom iznad ulaza, koja štiti ulazni deo od vremenskih uslova i doprinosi većem komforu svakodnevnog korišćenja.
Površina
152,62 m²
broj etaža
2,5
broj soba
12
Često postavljana pitanja
Odgovori na najčešća pitanja naših klijenata.
Koliko košta izrada montažne kuće?
Cena zavisi od dimenzija, materijala i drugih zahteva. Cena po kvadratu po sistemu “ključ u ruke” je obično 700 EUR. Pozovite nas za besplatnu konsultaciju i detaljnu ponudu.
Koliko traje izgradnja montažne kuće?
Rok izgradnje zavisi od veličine i kompleksnosti projekta, ali montažne kuće se znatno brže realizuju u odnosu na klasičnu gradnju. Tačan vremenski okvir definiše se nakon dogovora i izrade projekta.
Da li je moguće prilagoditi projekat prema našim željama?
Naravno. Svaki projekat prilagođavamo potrebama klijenta, lokaciji, budžetu i funkcionalnim zahtevima kako bismo dobili optimalno rešenje.
Da li su montažne kuće kvalitetne i dugotrajne?
Da. Montažne kuće su projektovane da budu izuzetno kvalitetne, stabilne i dugotrajne. Uz pravilnu izgradnju i održavanje, njihov vek trajanja je uporediv sa klasičnim kućama.
Koji materijali se koriste u gradnji?
U izgradnji koristimo pažljivo odabrane i kvalitetne materijale, uz kombinaciju savremenih tehnologija koje obezbeđuju energetsku efikasnost, sigurnost i dugotrajnost objekta.
Gde radimo
Izrađujemo i montiramo kuće u Srbiji i inostranstvu. Inače smo iz Ivanjice.
Zatražite besplatne konsultacije i ponudu
Kontaktirajte nas za besplatne konsultacije i ponudu. Bez obaveza.