Tip 160

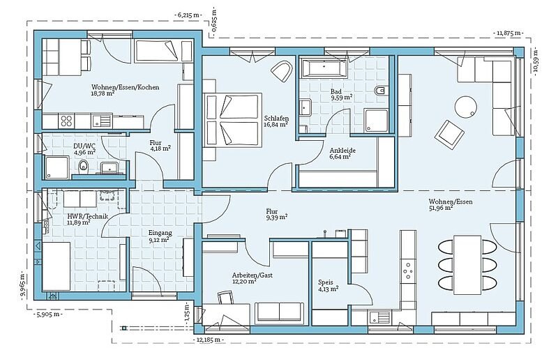
Život sa porodicom ili prijateljima pod istim krovom, uz zadržavanje sopstvene privatnosti – moguć je i u montažnoj kući ovog tipa. Ovaj projekat predviđa dve odvojene stambene jedinice organizovane na jednom nivou.

 

Iz zajedničkog ulaznog prostora pristupa se manjoj stambenoj jedinici od oko 28 m², koja obuhvata objedinjeni dnevni boravak, trpezariju i kuhinju, kao i kupatilo.

 

Iz iste zone ulazi se i u veću, glavnu stambenu jedinicu. Pažljivo osmišljen raspored na 111 m² omogućava dodatnu radnu ili gostinsku sobu, praktičnu ostavu i garderober. Širok hodnik, prostran dnevni boravak sa trpezarijom i veliko kupatilo pružaju visok nivo komfora i idealne uslove za nesmetano, pristupačno stanovanje.

 

Zajednička tehnička prostorija pozicionirana je tako da bude dostupna svim korisnicima, čime se dodatno povećava funkcionalnost celog objekta.

Površina

159,69 m²

broj etaža

1

broj soba

10

Često postavljana pitanja

Odgovori na najčešća pitanja naših klijenata.

Cena zavisi od dimenzija, materijala i drugih zahteva. Cena po kvadratu po sistemu “ključ u ruke” je obično 700 EUR. Pozovite nas za besplatnu konsultaciju i detaljnu ponudu.

Rok izgradnje zavisi od veličine i kompleksnosti projekta, ali montažne kuće se znatno brže realizuju u odnosu na klasičnu gradnju. Tačan vremenski okvir definiše se nakon dogovora i izrade projekta.

Naravno. Svaki projekat prilagođavamo potrebama klijenta, lokaciji, budžetu i funkcionalnim zahtevima kako bismo dobili optimalno rešenje.

Da. Montažne kuće su projektovane da budu izuzetno kvalitetne, stabilne i dugotrajne. Uz pravilnu izgradnju i održavanje, njihov vek trajanja je uporediv sa klasičnim kućama.

U izgradnji koristimo pažljivo odabrane i kvalitetne materijale, uz kombinaciju savremenih tehnologija koje obezbeđuju energetsku efikasnost, sigurnost i dugotrajnost objekta.

Gde radimo

Izrađujemo i montiramo kuće u Srbiji i inostranstvu. Inače smo iz Ivanjice.

Zatražite besplatne konsultacije i ponudu

Kontaktirajte nas za besplatne konsultacije i ponudu. Bez obaveza.