Tip 126
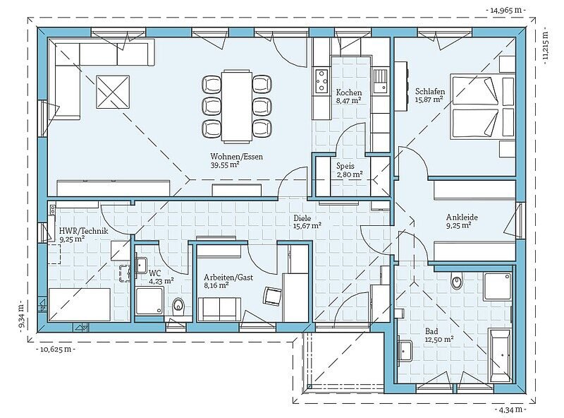
Ova montažna kuća sa četvorovodnim krovom predstavlja bezvremenski klasik. Sa 126 m² stambenog prostora organizovanog na jednom nivou, pruža visok nivo komfora i funkcionalnosti, uz mogućnost dodatnog proširenja natkrivenom terasom – idealnim mestom za uživanje tokom toplih letnjih večeri.
Pored standardnih prostorija, objekat nudi i dodatnu radnu ili gostinsku sobu, garderober, ostavu, kao i drugo kupatilo sa tušem i toaletom, čime se dodatno unapređuje praktičnost i kvalitet svakodnevnog života.
Površina
125,75 m²
broj etaža
1
broj soba
9
Često postavljana pitanja
Odgovori na najčešća pitanja naših klijenata.
Koliko košta izrada montažne kuće?
Cena zavisi od dimenzija, materijala i drugih zahteva. Cena po kvadratu po sistemu “ključ u ruke” je obično 700 EUR. Pozovite nas za besplatnu konsultaciju i detaljnu ponudu.
Koliko traje izgradnja montažne kuće?
Rok izgradnje zavisi od veličine i kompleksnosti projekta, ali montažne kuće se znatno brže realizuju u odnosu na klasičnu gradnju. Tačan vremenski okvir definiše se nakon dogovora i izrade projekta.
Da li je moguće prilagoditi projekat prema našim željama?
Naravno. Svaki projekat prilagođavamo potrebama klijenta, lokaciji, budžetu i funkcionalnim zahtevima kako bismo dobili optimalno rešenje.
Da li su montažne kuće kvalitetne i dugotrajne?
Da. Montažne kuće su projektovane da budu izuzetno kvalitetne, stabilne i dugotrajne. Uz pravilnu izgradnju i održavanje, njihov vek trajanja je uporediv sa klasičnim kućama.
Koji materijali se koriste u gradnji?
U izgradnji koristimo pažljivo odabrane i kvalitetne materijale, uz kombinaciju savremenih tehnologija koje obezbeđuju energetsku efikasnost, sigurnost i dugotrajnost objekta.
Gde radimo
Izrađujemo i montiramo kuće u Srbiji i inostranstvu. Inače smo iz Ivanjice.
Zatražite besplatne konsultacije i ponudu
Kontaktirajte nas za besplatne konsultacije i ponudu. Bez obaveza.